Multisport Simulator Suite
TRUGOLF SIMULATOR • WET BAR • 10’ PORCH W/ FIREPLACE • YEAR-ROUND USE
The Multisport Simulator Suite is built to deliver a premium entertainment experience in a compact, high-performance space. Step inside and you’re immediately immersed in a full-scale TruGolf simulator setup, paired with a clean, modern interior designed for comfort and durability.
A dedicated simulator bay, wet bar, and half bath make this the perfect setup for private use, rentals, or high-end amenity spaces. Whether it’s golf, baseball, hockey, or interactive games, this unit keeps people engaged and coming back.
Key Specs
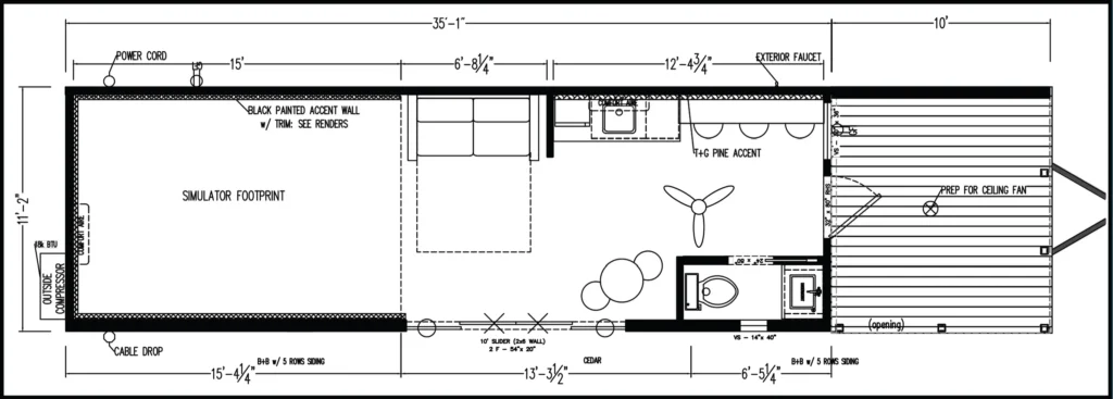
Size: 399 sq. ft.
Primary Use: Entertainment / Simulator Space
Bathroom: ½ Bath
Porch: 10’ Covered Porch w/ Fireplace
Climate Control: Minisplit System

THE ULTIMATE MULTISPORT EXPERIENCE
This unit is centered around a full multisport simulator experience designed for all ages and skill levels. The dedicated simulator footprint allows for seamless gameplay across a wide range of sports and interactive environments.
From realistic golf courses to fast-paced arcade-style competitions, the space is built to entertain groups, families, and guests without compromise.
– TruGolf simulator with hundreds of courses and game modes
– Supports golf, baseball, soccer, hockey, shooting games, and more
– Dedicated simulator bay with optimized layout and spacing
– High-impact entertainment ideal for rentals, resorts, and private use
A drop-in amenity
Beyond the simulator, the space is designed for comfort and usability. A built-in wet bar, modern finishes, and a clean layout make it easy to host, relax, and reset between sessions. Every detail is selected for durability, low maintenance, and long-term performance.
Built for daily use
This unit is engineered for consistent, high-traffic use. From commercial installations to private properties, the materials and systems are selected to handle real-world wear while maintaining a clean, modern look.
Efficient climate control, durable finishes, and a smart layout make this a turnkey solution for year-round operation.
– Quartz countertops throughout
– Smart LP siding with real-wood trim accents
– Standing seam metal roof
– Closed-cell spray foam insulation in floor
– Energy-efficient minisplit heating and cooling system
Connect
Talk with a dealer about your goals & location
Customize
Pick your colors, options, and layout
Delivered & Ready
Professionally installed and move-in ready
Ideal For:
Resorts and vacation rental properties looking to stand out
Campgrounds upgrading to premium entertainment amenities
Private properties and guest houses
Golf-focused communities and developments
Year-round indoor entertainment spaces
Ready to learn more?
Connect with a local dealer to explore pricing, availability, and delivery options near you.
