BATH HOUSE AMENITY
4 PRIVATE RESTROOMS & SHOWERS • ADA ACCESSIBLE • BUILT FOR HIGH-TRAFFIC USE
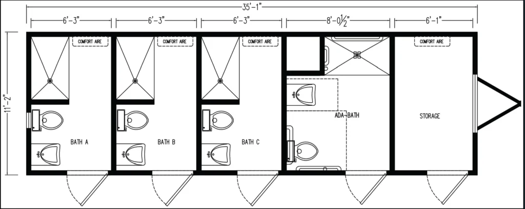
The Bath House Amenity is designed to deliver a clean, modern, and highly functional restroom solution for campgrounds, resorts, and high-traffic properties. Built with durability and efficiency in mind, this unit provides four private restrooms with full showers, along with a dedicated storage and maintenance space.
From guest comfort to operational simplicity, every detail is engineered to handle daily use while maintaining a professional, well-kept appearance that reflects the quality of your property.
Key Specs
Size: 399 sq. ft.
Total Units: 4 Private Bathrooms
Showers: 60” Tiled Showers
Accessibility: 1 ADA-Compliant Bathroom
Water Heating: (2) Rinnai Tankless Systems
Climate Control: Split Air System (Individual Air Heads)
Additional Space: Storage / Maintenance Room

DESIGNED FOR COMFORT AND FLOW
Each bathroom is designed as a private, self-contained space to improve guest experience and reduce congestion. The layout allows for smooth traffic flow while maintaining privacy and cleanliness standards expected in premium environments.
Separate entrances, dedicated fixtures, and efficient spacing make this an ideal upgrade for properties looking to elevate their amenities without overcomplicating operations.
– Four fully enclosed private restrooms for improved guest privacy
– Dedicated ADA-compliant bathroom for accessibility
– 60” tiled showers built for durability and easy cleaning
– Layout optimized for steady, high-volume usage
BUILT FOR DAILY OPERATION
This unit is engineered to perform under consistent use. Commercial-grade materials and smart system design reduce maintenance while keeping the space clean, functional, and reliable.
From plumbing to climate control, everything is built to support long-term operation in demanding environments.
CONSTRUCTION & SYSTEMS
Durability is at the core of this build. Materials and systems are selected to withstand moisture, traffic, and continuous use while maintaining a clean, modern finish.
– Smart LP siding for long-term exterior durability
– Standing seam metal roof for weather resistance
– ½” drywall with 4’ high FRP panels for easy cleaning
– Manifold plumbing system for efficient water distribution
– Split air system with individual air heads in each bathroom
– Dual Rinnai tankless water heaters for consistent hot water
Connect
Talk with a dealer about your goals & location
Customize
Pick your colors, options, and layout
Delivered & Ready
Professionally installed and move-in ready
Ideal For:
Campgrounds and RV parks upgrading core amenities
Resorts and rental communities needing modern restroom facilities
Outdoor venues and event spaces
Hospitality properties focused on guest experience
Any property requiring durable, high-capacity restroom solutions
Ready to learn more?
Connect with a local dealer to explore pricing, availability, and delivery options near you.
